Office
Property ID: MYS-P-001OXDoffice
Plaza Conlay (Tower 1)(Menara Bank Pembangunan)
Menara 1, Plaza Conlay, Jalan Conlay,
Jalan Conlay, Kuala Lumpur
MYR 7 - MYR 10 per sqft
- Size7,412 - 19,160 sqft
- Description
- Building Information
- Location
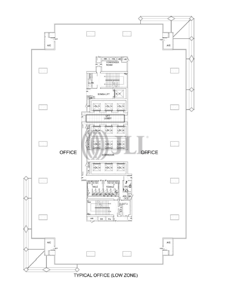
- Floor plan
Description
Plaza Conlay is a premium grade office tower that is expected to be completed in 2021 by phases. The development consist of 3 office towers (Plaza One,
Plaza Two & Plaza Three). The office tower will be constructed with reinforced concrete and grey-tinted low-emissivity double-glazed glass. The main lobby’s floor,
walls and reception counter will be finished with beige marble, imported from Iran, to give a neutral earth tone ambiance along with a sense of grandeur for all
who enter the tower, complemented with bright yellow settees and modern furniture.

